南京

高科荣域134平现代简约风格

发布时间:2022-04-18 15:50:01

7542
  • 户型:三居室
  • 面积:134㎡
  • 地址:高科荣域
  • 风格:现代简约
设计理念
绿植,是增加家庭温度的绝对利器。
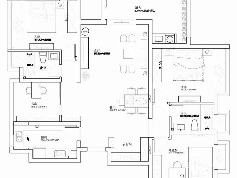
户型图
客厅
餐厅
本案设计师
方林集团
方林装饰设计师
  • 从业25年
  • 案例150套

擅长风格:新中式风格

相似案例推荐

查看更多

基于当地的人文特质与生活格调,使用大胆的撞色与潮玩物件,碰撞出舒适、优雅的生活态度,凸显“家”概念所承载的日常性、互动性及趣味性。

徐小龙

金陵家天下358平现代简约风格

  • 别墅
  • 358㎡
  • 金陵家天下

结合客户的大概需求,把不规则的迷宫户型改善一下,经初步沟通,需要四房,三卫只保留两卫,厨房需要扩大,双阳台只有一个做生活阳台,还有一个做休闲阳台,增加客餐厅的通透感。客餐厅做中央空调和无主灯设计,卧室均做常规设计即可。

徐国平

御景园香山红郡183平现代简约

  • 四居室
  • 183㎡
  • 御景园香山红郡

热门装修攻略

查看更多
Copyright © 2000-2023 方林家居装饰有限公司
辽ICP备12003026号-4
网站备案信息

预约免费量房

免费上门精准测量规划

马上预约